Aktuálně můžete v lokalitě Ústí nad Labem vybírat z nabídky 33 domů.
Přehled nemovitostí: prodej domy > rodinné domy Zpět na přehled nabídek

Prodej rodinného domu se třemi bytovými jednotkami, Ústí nad Labem - ul. Čajkovského

1 641 m2

257 m2

osobní

G - Mimořádně nehospodárná

934

04.04.2026

Cena: 9990000 CZK / objekt
Poznámka k ceně: Včetně provize a právního servisu 1

Poslat dotaz k nabídce
Zásady používání osobních údajů

Prodejce

Makléř: Bc. Michaela Vojnarová

Telefon: 773 958 ...

E-mail: reality ...

Zobrazit celý kontakt

Nemovitost nabízí

RealitasFIN, s.r.o.

Masarykova 750/316, Ústí nad Labem

realitasfin.cz

Zobrazit kontakt na RK

Zobrazit všechny nabídky RK

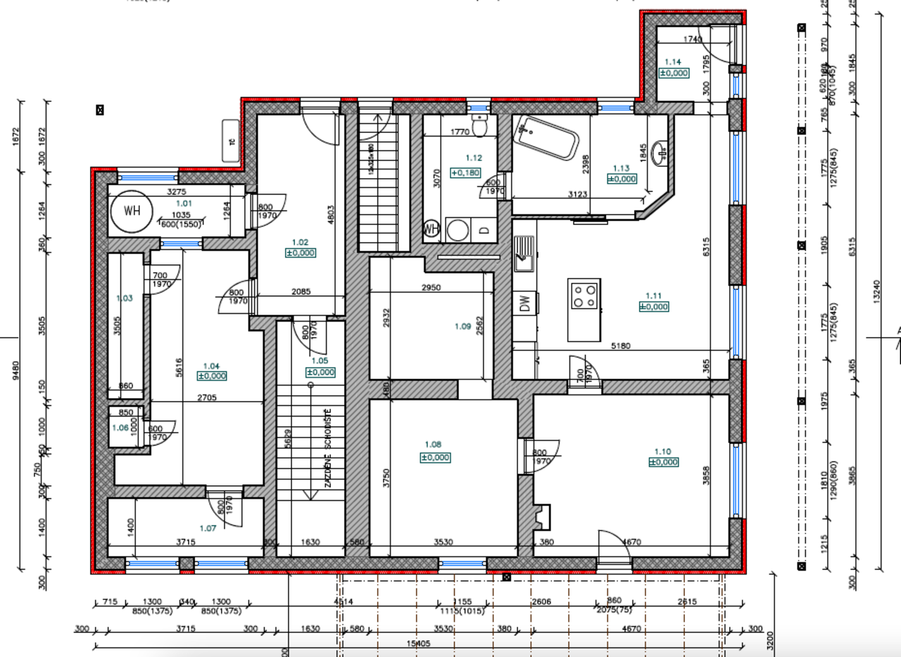
Nabízíme k prodeji prostorný rodinný dům o celkové podlahové ploše 257 m2, situovaný na krásném pozemku o velikosti cca 1 900 m2 v Ústí nad Labem, ul. Čajkovského. Nemovitost je ideální jak pro vícegenerační bydlení, tak jako investiční příležitost k pronájmu, díky rozdělení na tři samostatné bytové jednotky, z nichž každá má vlastní vstup. Dispozice domu: Přízemí: byt 2+1 (73 m2) se šatnou, koupelnou, WC a vstupem na prostornou terasu (cca 30 m2). 1. patro: byt 4+kk (88 m2) se zimní zahradou a venkovní terasou. Další jednotka: byt 1+kk s vlastním zázemím (38 m2). Dispozice patra je variabilní a umožňuje úpravu například na 3+kk a 1+1. Technický stav: Dům prošel postupnou rekonstrukcí od roku 2017, nová střecha, rozvody elektřiny, topení, stropy a částečně podlahy, výměna oken. Dům je částečně podsklepen a v přízemí se nachází také technické zázemí o celkové ploše cca 35 m2, které nabízí dostatek prostoru pro skladování, dílnu či další využití. Vytápění je řešeno elektrickým kotlem nebo krbovými kamny, které efektivně vytápí dům. Ohřev vody zajišťuje bojler. Pozemek a exteriér: - okrasná zahrada s jezírkem - dostatek prostoru pro relaxaci i rodinné aktivity - parkování až pro 5 vozidel - samostatná garáž (cca 40 m2) Využití: - vícegenerační bydlení
 - investice - možnost pronájmu - kombinace vlastního bydlení a příjmu z nájmu Dům se nachází v dostupné lokalitě s dobrou občanskou vybaveností a napojením na centrum města. V případě zájmu o více informací nebo sjednání prohlídky mě kontaktujte. Ráda Vám nemovitost osobně představím.



Nahoru