Makléř: Bartáková Marie
Telefon: 296 399 ...
E-mail: info@mm ...
Zobrazit celý kontaktTelefon: 296 399 006
E-mail: info@mmreality.cz
Nemovitost nabízí
M&M reality holding a.s.
Krakovská 1675/2, 110 00 Praha 1
Zobrazit kontakt na RK800 100 446
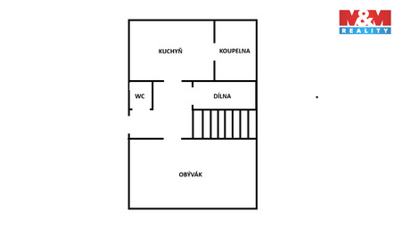
Nabízíme k prodeji jedinečný rodinný dům v klidné části obce Rumburk. Tato roubená nemovitost, umístěná na samostatném pozemku o rozloze 368 m2, je ideální pro ty, kteří hledají klidné bydlení v dosahu přírody. Dům disponuje šesti prostornými místnostmi a užitnou plochou 96 m2.Vytápění plynovým kotlem i na tuhá paliva. Nemovitost je v současnosti před rekonstrukcí, což novým majitelům umožňuje přizpůsobit si interiér podle vlastních představ a potřeb. Skvělá příležitost pro ty, kteří chtějí vytvořit svůj vysněný domov s osobitým kouzlem. Nechte se okouzlit touto nabídkou a objevte potenciál, který tento dům nabízí.
Prodej rodinného domu, 140 m2, Rumburk, ul. Horská
Nabízíme k prodeji rozestavěný rodinný dům v klidné části obce Rumburk-Horní Jindřichov, ulice Horská. Tento samostatně stojící dům je ideální volbou…
Prodej roubeného RD v Rumburku
Stavba přízemního rodinného domu, původní lužickosrbské architektury, roubené konstrukce s obytným podkrovím a sedlovou střechou, vybudovaného na…