Makléř: Malá Sylvie
Telefon: 607 750 ...
E-mail: sylvie. ...
Zobrazit celý kontaktTelefon: 607 750 067
E-mail: sylvie.mala@century21.cz
Nemovitost nabízí
CENTURY 21 Alex
Hvězdova 33, 14021 Praha 4 - Pankrác
www.century21.cz/kancelar-alex
Zobrazit kontakt na RKmagdalena.gomezova@century21.cz
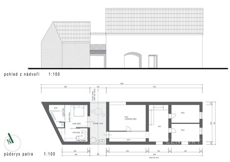
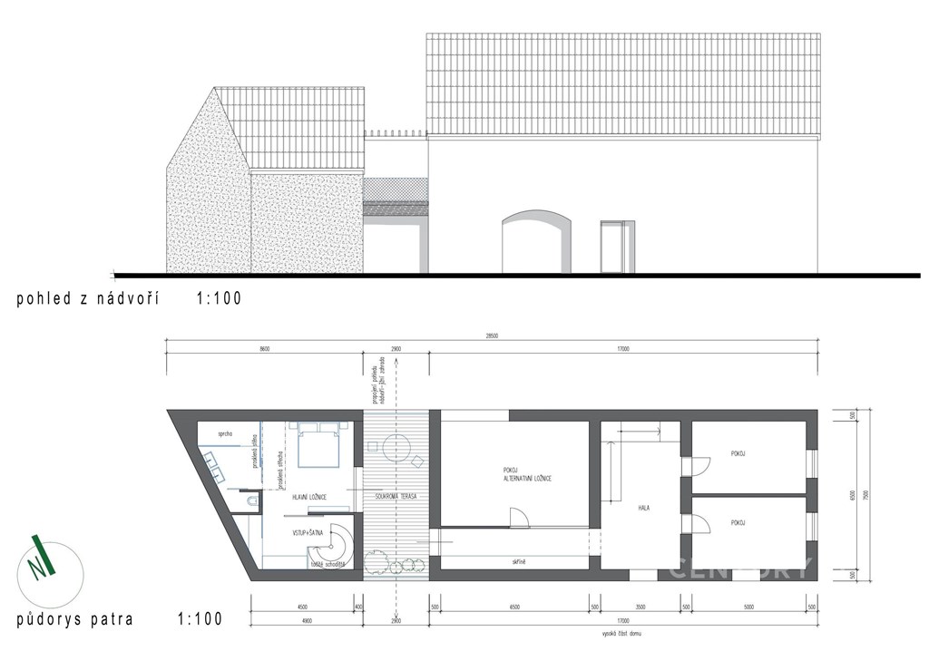
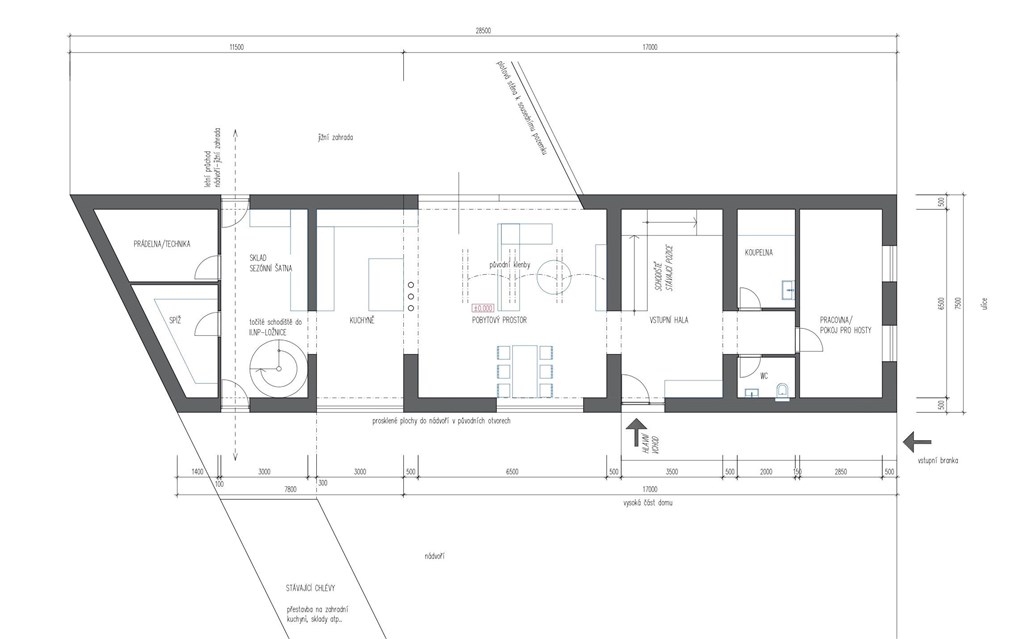
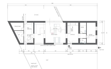
Prodej rodinného domu s vizualizacemi možné rekonstrukce, která vychází z budoucí okolní zástavby. Projekt je součástí menšího developerského území (7 domů), které vytvoří exkluzivní čtvrť v malebné obci Jimlín. Dům je vhodný pro každého, kdo hledá luxusní prostorné a světlé bydlení v klidném prostředí. Dům se nachází na velké parcele o rozloze 1 002 m2, přičemž celková zastavěná plocha je 199 m2 a nebytová plocha garáže pro 2 auta je 50 m2. Plánovaná obytná plocha domu činí 295 m2, dispozice 7+kk. Dům bude mít 2 nadzemní podlaží a obytné podkroví. V přízemí bude prostorný obývací pokoj s kuchyní a s nádherným výhledem do zahrady a vstupem na terasu, dále pracovna, technická místnost a koupelna. V prvním patře budou dva pokoje, ložnice se šatnou a vlastní koupelnou, samostatná koupelna. V podkroví budou dvě prostorné místnosti, sklad a knihovna. Díky tomuto rozměru nabízí dům dostatek prostoru jak pro každodenní život, tak pro příjemné chvíle strávené s rodinou či přáteli. Exteriéry domu budou stejně přitažlivé jako jeho interiér. V projektu přední část domu krášlí terasa, která je ideálním místem pro odpolední relaxaci. Dům je obklopen velkou zahradou, jež nabízí dostatek prostoru pro zahradní aktivity, pěstování i odpočinek v soukromí a chybět nemůže ani bazén. Veškerá občanská vybavenost obecní úřad, mateřská školka, základní škola, restaurace a obchody jsou přímo v obci nebo v jejím bezprostředním okolí, což zajišťuje vysoký standard bydlení. Dopravní dostupnost je velmi dobrá, kousek je zastávka vlaku i autobusu.
Prodej rodinného domu, 117 m2, Jimlín-Zeměchy
Pokud hledáte vhodnou nemovitost na investici, nabízíme Vám prodej podílu 2/3 přízemního rodinného domu 3+1 se zahradou o výměře 416 m2 v klidné…
Prodej rodinného domu, 208 m2, Jimlín-Zeměchy
Nabízíme k prodeji prostorný rodinný dům v klidné části obce Zeměchy u Loun. Tento samostatně stojící cihlový dům s užitnou plochou 208 m2 nabízí…