Makléř: Šulcová Jolana
Telefon: 420 603 ...
E-mail: jolana. ...
Zobrazit celý kontaktTelefon: 420 603 163 679
E-mail: jolana.sulcova@era-reality.cz
Nemovitost nabízí
Severní realitní Ústí nad Labem s.r.o.
Masarykova 635/159, 400 01 Ústí nad Labem
Zobrazit kontakt na RK603 163 679
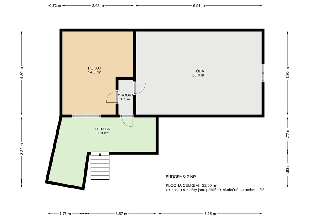
Nabízíme k prodeji menší RD s dispozicí 2+1, resp.3+1, příslušenstvím a dvorkem na pozemku celkem 106 m2 a dále spolu s ním zahradu 570 m2, vzdálenou cca 5 min chůze. Nemovitosti jsou nabízeny jako celek, nelze prodat zahradu samostatně. Domek je ze smíšeného zdiva a sloužil k trvalému bydlení. Je napojený na veškeré dostupné IS elektřinu, vodovod a kanalizaci, plyn není. V přízemí se nachází 2 pokoje, kuchyňka, předsíň a malá koupelna se sprchovým koutem, v patře, přístupném po venkovních schodech, je pak další, letní pokoj, otevřená terasa a půda. Ze dlážděného dvora vejdete do venkovní komory a kůlny/dílny. Ulička, v níž se domek nachází, je přístupná autem do vzdálenosti cca 10 m od domku, pak už jen pěšky. Zaparkujete však velmi blízko v příjezdové ulici cca 80 m od domku. Zahrada je úžasným bonusem 5 min chůze, rovinatá, s přípojkou el.proudu a vlastní studnou o hloubce 5 m, která dosud nikdy nevyschla. Získáte útulný domek jako ve Zlaté uličce, který si dobudujete podle svých představ, a zahradu, kde realizujete všechny své sny. Ráda Vám podám bližší informace a zajistím prohlídku domku. Pomoc s vyřízením hypotéky v případě potřeby samozřejmostí.
Prodej rodinného domu s bazénem v klidné lokalitě Mšených lázní
Exkluzivně nabízíme prodej rodinného domu ve Vrbicích - Mšené lázně. Základní informace nemovitosti: Užitná plocha: 269 m Dispozice: 2 samostatné…
Prodej rodinného domu, 182 m2, Křesín, ul. Křesín
Na prodej rodinný dům v klidné části obce Křesín. Tato řadová nemovitost je ideální pro ty, kteří hledají klidné bydlení mimo městský ruch s možností…