Makléř: Herich Filip
Telefon: 724 657 ...
E-mail: info@re ...
Zobrazit celý kontaktTelefon: 724 657 056
E-mail: info@reality-herich.cz
Nemovitost nabízí
REALITY HERICH
Pod Vodárnou 1819, Jirkov
Zobrazit kontakt na RK
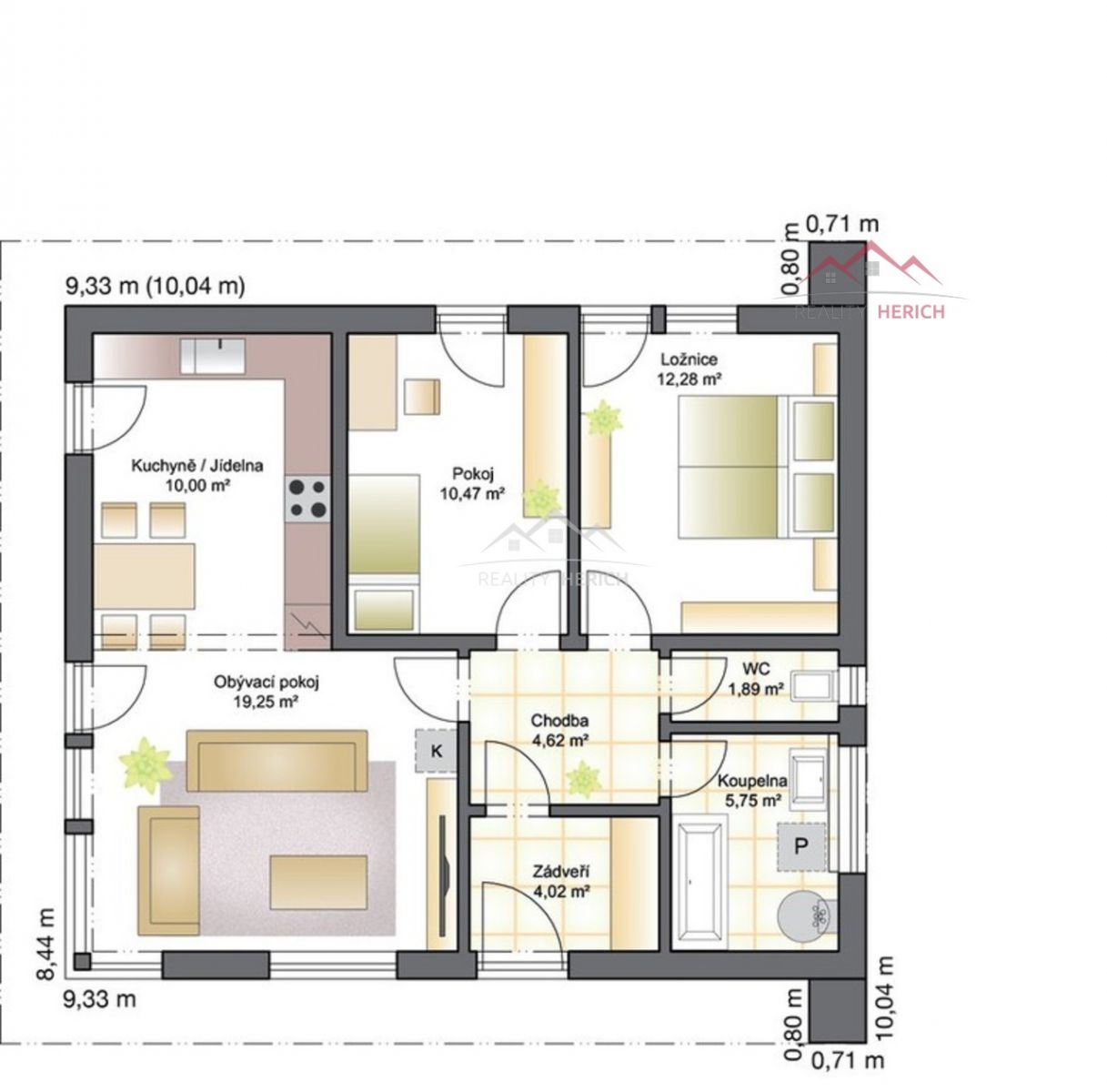
Bungalov 3+1 (86 m2) Chomutov Dům je charakteristický svoji promyšlenou jednoduchostí, která se promítá jak do dispozičního řešení vnitřních prostorů, tak i do celkového hmotového uspořádání. Funkční rozvržení dispozice zabezpečuje dostatek prostoru jak pro pár, tak i pro menší rodinu. Předsazená střešní konstrukce umožňuje komfortní propojení ložnic a vstupní části domu s prostornou terasou. Terasa se v letních měsících stává plnohodnotnou součástí obytného prostoru a tvoří dominantní prvek domu, který svým uživatelům umožňuje bezprostřední kontakt se zahradou. Vaše každodenní radost z bydlení. Technická data domu Inspirace 1 Typ rodinného domubungalov Druh stavbymontovaný rodinný dům Materiáldřevostavba Počet místností3+1 Vnější rozměry10,04 x 10,04 m Zastavěná plocha85,87 m Užitná plocha celkem68,28 m Typ střechyplochá střecha Sklon střechy1 <a href="https://www.eurobydleni.cz/domy/rodinny-dum/chomutov/obec-chomutov/prodej/"><strong>Prodej rodinného domu Chomutov</strong></a>
Prodej rodinného domu se zahradou v klidné lokalitě Klicperova, Chomutov
Nabízíme k prodeji rodinný dům, který se nachází v jedné z nejoblíbenějších a nejklidnějších částí Chomutova v ulici Klicperova. Tato lokalita je…
Prodej modulového domu 37 m
Prodej kompaktního modulárního domu jako ideální varianta pro jednotlivce, pár nebo jako sezónní rekreační bydlení. Dům nabízí otevřený obytný…
Prodej rodinného domu Chomutov na Eurobydleni.cz