Aktuálně můžete v lokalitě Ústí nad Labem vybírat z nabídky 31 domů.
Přehled nemovitostí: prodej domy > rodinné domy Zpět na přehled nabídek

Prodej, Rodinný dům, Vroutek

537 m2

300 m2

F - Velmi nehospodárná

0066

01.03.2026

Cena: 5990000 CZK / objekt
Poznámka k ceně: DALŠÍ PROHLÍDKY 7.2.2026!! VOLEJTE 775 651 767 1

Poslat dotaz k nabídce
Zásady používání osobních údajů

Prodejce

Makléř: Richard Hocque

Telefon: 775 651 ...

E-mail: kontakt ...

Zobrazit celý kontakt

Nemovitost nabízí

Czech home

Družstevní 138, Pardubice

www.czechhome.cz

Zobrazit kontakt na RK

Zobrazit všechny nabídky RK

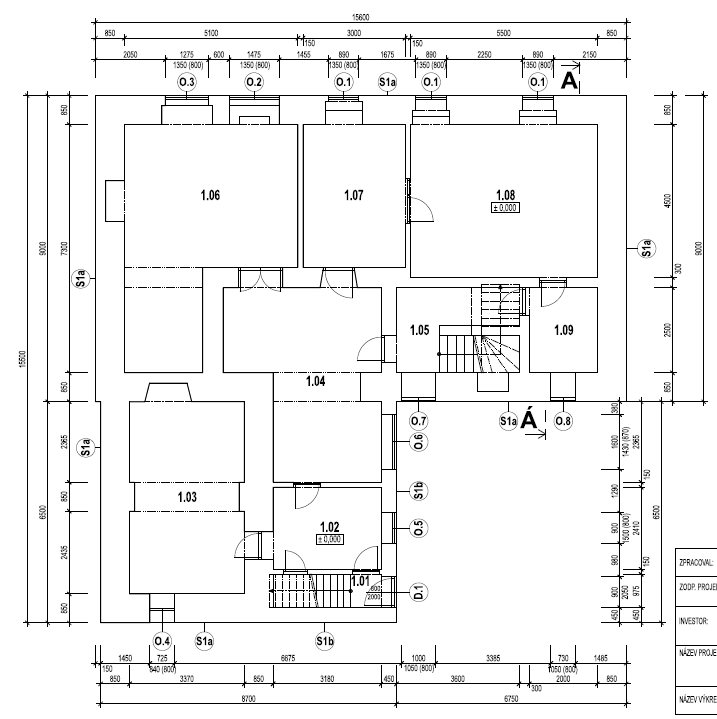
Nabízíme k prodeji prostorný a kompletně zrekonstruovaný rodinný dům, který se nachází přímo v srdci města Vroutek. Nemovitost je díky své dispozici, dvěma schodištím a připraveným přípojkám v patře vhodná jak pro rodinné bydlení, tak jako výborná investiční příležitost - s možností vybudovat až tři samostatné bytové jednotky nebo vícegenerační dům. Dispozice a vybavení domu Vstup do domu vede přes uzavřené nádvoří, které poskytuje naprosté soukromí. Za vstupními dveřmi se nachází menší předsíň se schody do patra. Odtud vstoupíte do prostorné haly, která vás zavede do hlavní ložnice s elegantním klenutým stropem. Centrální část domu tvoří kuchyně přístupná z haly, ze které se dále dostanete do: • obývacího pokoje o výměře 29 m2, • velké koupelny (12,6 m2) vybavené vanou, sprchovým koutem, WC, umyvadlem, designovým radiátorem a průtokovým bojlerem, • prostorné ložnice (25 m2), • prádelny s pračkou, sušičkou a dostatkem úložného prostoru. Mezi kuchyní a prádelnou se nachází chodba s druhým schodištěm do patra a vstupem do sklepa (6 m2). První patro - připraveno pro další bydlení V patře je v současnosti jedna ložnice. Zbylá část (celkem 172 m2 + půda 40 m2) je připravena k dokončení dle vašich představ - jsou zde nachystány veškeré potřebné přípojky (elektřina, odpady, koupelna, kuchyně). Díky dvěma samostatným schodištím lze podkroví rozdělit a vytvořit několik bytových jednotek. Ideální varianta pro investory nebo větší rodiny. Technické vybavení a energetika Dům je napojen na městský vodovod, kanalizaci a elektřinu. Vytápění i chlazení zajišťují klimatizační jednotky. Velkým benefitem je solární elektrárna s bateriovým uložištěm, díky které činí celkové měsíční náklady na energii přibližně 3000 Kč (včetně nabíjení elektromobilu). Energetická třída domu je F, což je způsobeno pouze jeho objemem - provoz domu je ale velmi úsporný. Rekonstrukce 2022-2025 Dům prošel rozsáhlou a kvalitní rekonstrukcí: • nová střešní krytina + 20 solárních panelů, • kompletní zateplení fasády i podkroví, • nová plastová okna, • kompletní výměna elektroinstalace, rozvodů vody a odpadů, • stěny ošetřeny proti vlhkosti. Velká část vybavení může zůstat po dohodě, a dokonce je možné přikoupit i elektromobil. Pozemek a okolí Dům se nachází na pozemku o výměře 537 m2, zastavěná plocha je 195 m2. Součástí je také prefabrikovaná garáž z roku 2025 s nabíječkou pro elektromobily. Ve Vroutku najdete veškerou základní občanskou vybavenost, širší nabídku služeb poskytují nedaleké Podbořany (6,5 km). Dálnice D6 je jen 7,5 km daleko, a do Prahy dojedete za 1 hodinu (cca 77 km).



Nahoru