Makléř: Kurlikovskyy Artur
Telefon: 774 311 ...
E-mail: artur.k ...
Zobrazit celý kontaktTelefon: 774 311 817
E-mail: artur.kurlikovskyy@housevip.cz
Nemovitost nabízí
House ViP, s.r.o.
Veletržní 924/14, 170 00 Praha - Holešovice
Zobrazit kontakt na RK
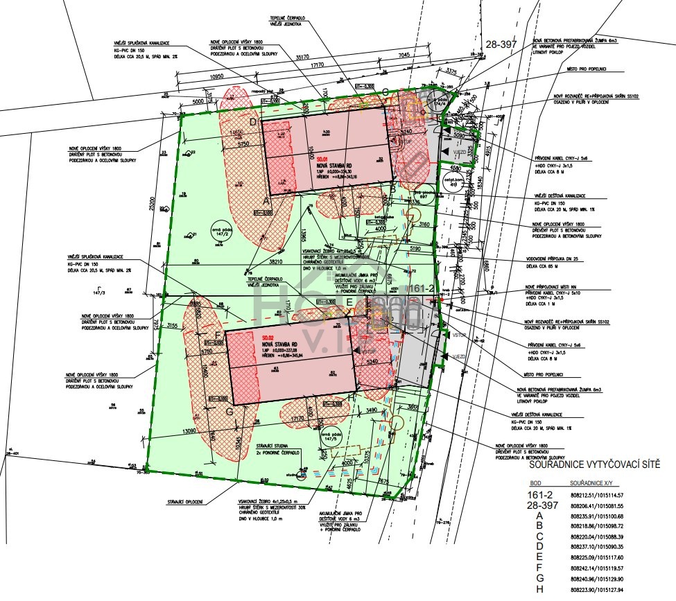
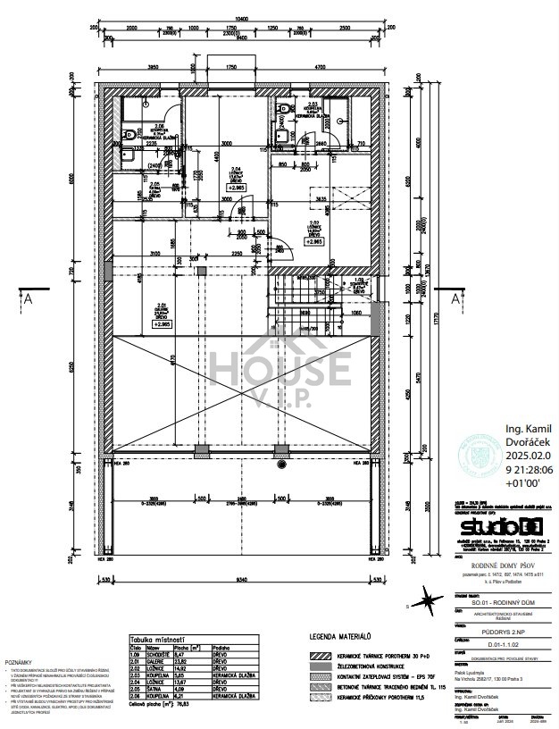
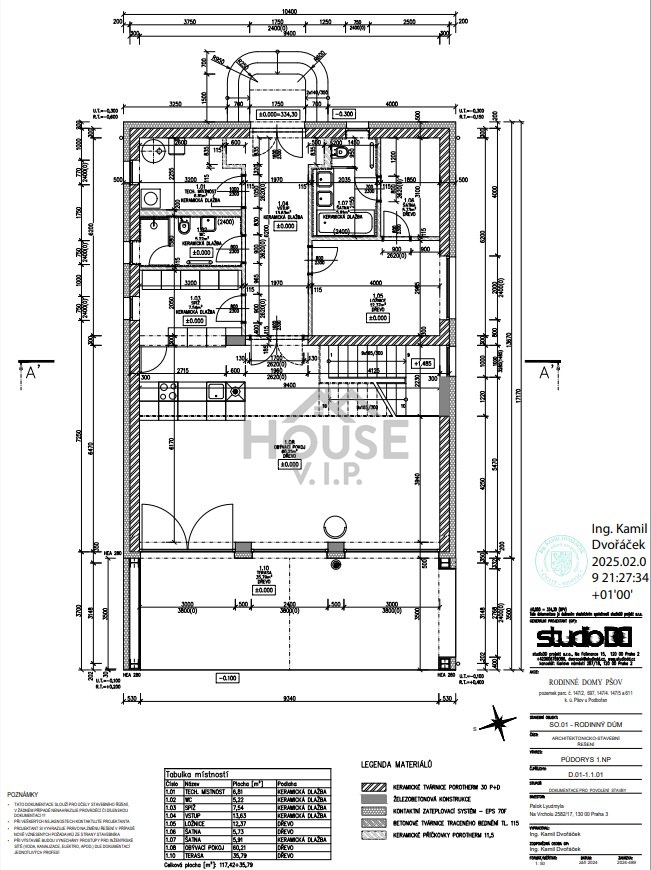
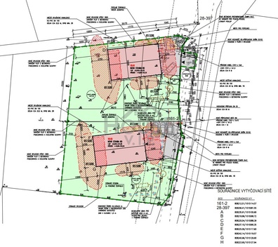
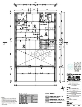
Nabízíme k prodeji moderní rodinný dům na klíč 4+kk, o užitné ploše 194 m2, který bude realizován na slunném pozemku o výměře 1 000 m2, v klidné části obce Podbořany s krásným výhledem do zeleně. Projekt je připravován ve vysokém standardu přímo vlastníkem pozemku, s důrazem na kvalitu použitých materiálů, energetickou úspornost a komfortní bydlení. Schválení stavebního povolení očekáváme koncem roku 2025. Výstavba a cena: Cena zahrnuje pozemek a realizaci hrubé stavby (základy, nosné konstrukce, střecha, zateplení, okna, dveře, schodiště). Za příplatek je možné dokončit dům přesně dle vizualizace a požadavků kupujícího. Na prodej je také sousední pozemek včetně realizace o stejné výměře 1 000 m2 (viz koordinační výkres). Je také možné koupit pozemek ihned s hotovým projektem za 2.49 mln. s možností samostatné realizace. Financování stavby je možné rozdělit na jednotlivé etapy, takže celou částku nemusíte platit najednou. Zastavěná plocha: 178,57 m2. Podlahová plocha: 194,25 m2. • 1. NP: 117,42 m2 + terasa 35,79 m2. • 2. NP: 76,83 m2. Výška stavby: 8,86 m. Konstrukce: nosné stěny z dutinových keramických tvárnic. Strop nad 1. NP: železobetonový monolit (tl. 250 mm). Vytápění: tepelné čerpadlo + krbová vložka. Další technologie: fotovoltaika, klimatické zatížení řešeno v projektu. Přípojka vody: ze stávající studny. Kanalizace: domovní ČOV. Dispozice 1. NP (117,42 m2): Technická místnost (6,81 m2), WC (5,22 m2), spíž (7,54 m2), vstupní hala (13,63 m2), ložnice (12,37 m2), šatna (5,73 m2), druhá šatna (5,91 m2), obývací pokoj s kuchyňským koutem (60,21 m2) a terasa (35,79 m2). Dispozice 2. NP (76,83 m2): Schodiště (8,47 m2), galerie (23,82 m2), ložnice (14,92 m2), koupelna (5,65 m2), druhá ložnice (13,67 m2), šatna (4,09 m2) a koupelna (6,21 m2). Lokalita: Nemovitost se nachází v tiché části obce, pouhých 350 m od autobusové zastávky směr Žatec. Podbořany nabízejí plnou občanskou vybavenost, dobrou dostupnost do větších měst a krásné okolí ideální pro rodinné bydlení. Energetická náročnost: Budoucí PENB bude odpovídat hodnotám nízkoenergetického až pasivního domu třídy "A", což zaručuje nízké provozní náklady. Pro více informací o rodinném domě a možnostech individuálních úprav nás kontaktujte.
Prodej rodinné domy, 450 m2 - Podbořany
Prodej ubytovacího zařízení - 450 m2 Dukelská, Podbořany 16 640 000 Kč Energetická náročnost budovy: Třída G - mimořádně nehospodárná Popis…
Prodej rodinného domu 186 m2, pozemek 1 187 m2, Podbořany - Buškovice
Hledáte místo, kde budete mít klid, prostor a čas zpomalit? V obci Buškovice, jen pár minut od Podbořan, nabízíme rodinný dům, který čeká na nového…