Aktuálně můžete v lokalitě Ústí nad Labem vybírat z nabídky 33 domů.
Přehled nemovitostí: prodej domy > rodinné domy Zpět na přehled nabídek

Prodej rodinného domu, 90 m2, Černiv

349 m2

90 m2

osobní

G - Mimořádně nehospodárná

844824

Cena: 4200000 CZK / objekt

Poslat dotaz k nabídce
Zásady používání osobních údajů

Prodejce

Makléř: Gončarová Dana

Telefon: 800 100 ...

E-mail: info@mm ...

Zobrazit celý kontakt

Nemovitost nabízí

M&M reality holding a.s.

Krakovská 1675/2, 110 00 Praha 1

www.mmreality.cz

Zobrazit kontakt na RK

Zobrazit všechny nabídky RK

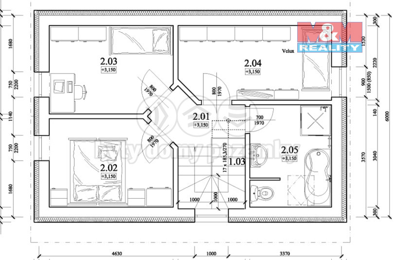
Uprostřed západního regionu Českého středohoří, v klidné vesničce obklopené nádhernou přírodou, na dohled zříceniny hradu Hazmburk nabízíme rozestavěný, samostatně stojící, rodinný dům. Stávající stav je s kompletním stavebním povolením a dle projektové dokumentace nepodsklepený, dvoupodlažní, obdélníkového půdorysu s rozměry 9,5 x 6,5 m, zastřešený sedlovou střechou. Dispozičně je veden jako 4 kk. V přízemí se nachází vstupní chodba, WC, technická místnost, šatna, kuchyně + obývací pokoj a schodiště. Ve 2 NP (podkroví) se nachází 3x pokoj, koupelna a WC. Dům je napojen na veřejný vodovod a kanalizaci. Celkové dokončení včetně vybavení je dle vlastních představ nového majitele.



Nahoru