Aktuálně můžete v lokalitě Ústí nad Labem vybírat z nabídky 34 domů.
Přehled nemovitostí: prodej domy > chaty a chalupy Zpět na přehled nabídek

Prodej chalupy, 96 m2, Kovářská, ul. Mlýnská

271 m2

96 m2

osobní

G - Mimořádně nehospodárná

923414

Cena: 5780000 CZK / objekt
Poznámka k ceně: Cena včetně právního servisu a provize RK. V případě více zájemců může RK využít pro výběr kupujícího formu aukce. 1

Poslat dotaz k nabídce
Zásady používání osobních údajů

Prodejce

Makléř: Mokriš Michael

Telefon: 296 399 ...

E-mail: info@mm ...

Zobrazit celý kontakt

Nemovitost nabízí

M&M reality holding a.s.

Krakovská 1675/2, 110 00 Praha 1

www.mmreality.cz

Zobrazit kontakt na RK

Zobrazit všechny nabídky RK

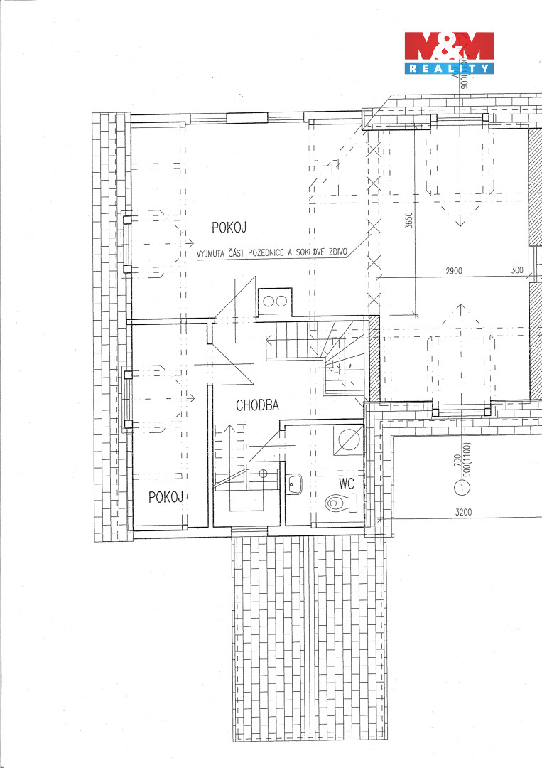
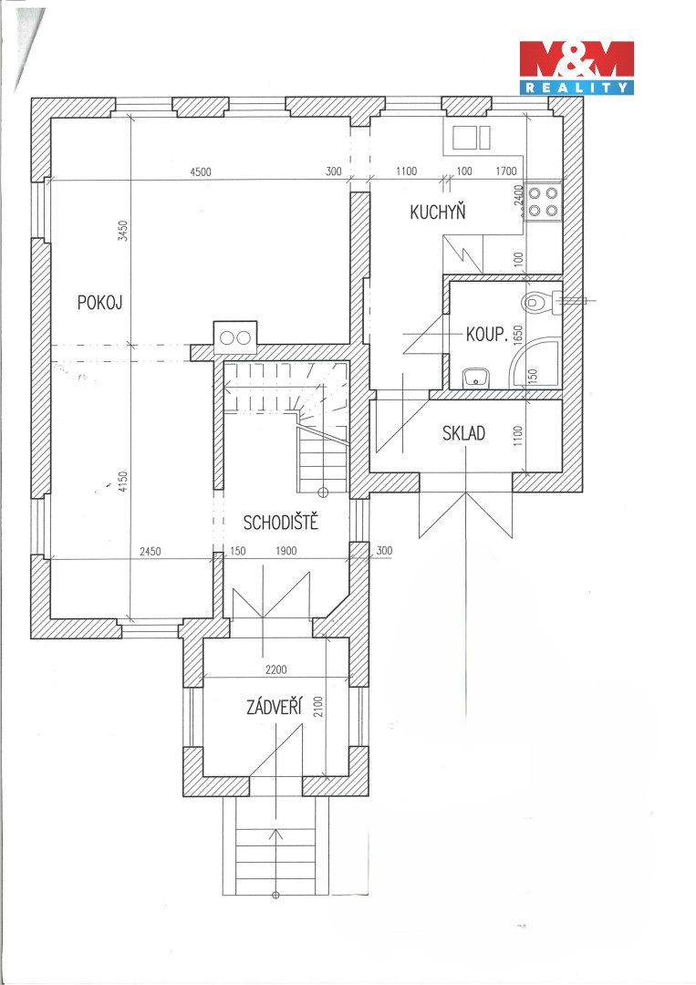
Nabízíme k prodeji útulnou chalupu v klidné části obce Kovářská. Tato samostatně stojící nemovitost je ideální volbou pro ty, kteří hledají klidné útočiště mimo městský ruch. Chalupa je smíšené konstrukce a nabízí dvě nadzemní podlaží s celkovou užitnou plochou 96 m2. Dispozice zahrnuje čtyři prostorné místnosti, které poskytují dostatek místa pro rodinné chvíle i soukromí. Pozemek mírně svahovitý a svou výměrou činí 271 m2 je ideální pro zahradní aktivity nebo relaxaci na čerstvém vzduchu. Stav nemovitosti je dobrý, což umožňuje okamžité užívání nebo drobné úpravy podle vašich představ. Chalupa se nachází v atraktivní lokalitě s krásnou okolní přírodou, vhodnou pro turistiku a rekreaci. Nezmeškejte tuto jedinečnou příležitost a domluvte si prohlídku ještě dnes!



Nahoru